¿Qué es el Steel Framing?
Se trata de un sistema constructivo moderno y eficiente que utiliza perfiles de acero como elementos principales, ofreciendo numerosas ventajas en términos de rapidez, resistencia, versatilidad y sostenibilidad.
Construcción
En seco
Proyectos listos
en 2 meses
Módulos
transportables
¡Conocé todas sus ventajas!
Sumate al futuro de la construcción
Contamos con materiales de la mejor calidad en el mercado
- Ensamblaje en seco y modular: Reduce los tiempos de construcción hasta en un 60%.
- Eficiencia de materiales: Se reduce el uso de materiales en comparación a la albañilería tradicional
- Altamente resistente: Soporta sismos, es inmune a plagas y corrosión
Nuestro proceso 100% personalizado
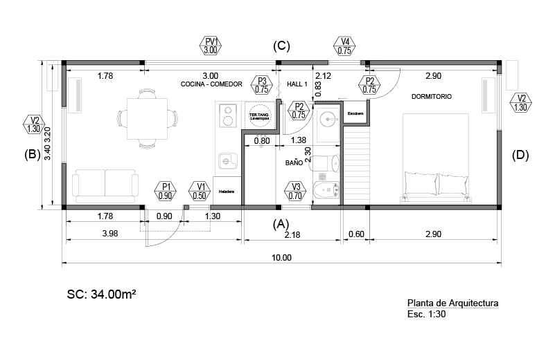
Definimos el diseño y evaluamos juntos qué adicionales te gustaría incluir. Nos adaptamos a todas tus necesidades y realizamos los ajustes necesarios hasta que estés completamente satisfecho antes de comenzar a construír.
¡Seguinos y enterate de todos nuestros proyectos!
@apexmod13
Ubicación
RN9 757, Sinsacate.
Córdoba
